中国元谋·远达温泉康养城

项目落址于元谋县城龙川江西岸,总投资规模约120亿元人民币,是云南2023年重大建设项目之一。项目分多期打造,规划建设有国际温泉度假酒店、特色商业街、康养住宅、龙川江生态湿地公园(捐建)、地震科普基地、教体融合教育区(教育配套学校)、体育场馆等业态。建成后将成为以“运动健康、温泉风貌绿色生态、历史文化”为核心元素的特色文旅健康城。

中国元谋·远达温泉康养城意境图

中国元谋·远达温泉康养城实景图

中国元谋·远达温泉康养城样板图

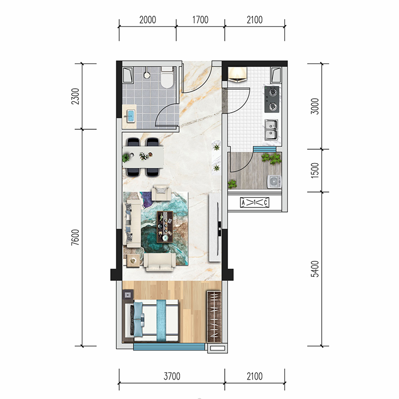
中国元谋·远达温泉康养城户型图

A1户型/两室两厅单卫/建筑面积:约73.26㎡

A1'户型/两室两厅单卫/建筑面积:约73.26㎡

A2户型/两室两厅单卫/建筑面积:约73.26㎡

A3户型/两室两厅单卫/建筑面积:约73.26㎡

Ba1户型/两室两厅单卫/建筑面积:约69.23㎡

Ba2户型/一室两厅单卫/建筑面积:约41.92㎡

Ba3户型/一室两厅单卫/建筑面积:约56.11㎡

Ba4户型/一室两厅单卫/建筑面积:约56.11㎡

Ba5户型/两室两厅双卫/建筑面积:约85.83㎡

B1户型/两室两厅单卫/建筑面积:约72.47㎡

B1'户型/两室两厅单卫/建筑面积:约72.47㎡

B2户型/两室两厅单卫/建筑面积:约68.6㎡

B3户型/三室两厅单卫/建筑面积:约86.52㎡

B4户型/三室两厅双卫/建筑面积:约96.03㎡

C1户型/两室两厅单卫/建筑面积:约72.95㎡

C1'户型/两室两厅单卫/建筑面积:约72.95㎡

C2户型/一室两厅单卫/建筑面积:约55.96㎡

C3户型/两室两厅单卫/建筑面积:约69.06㎡

C4户型/三室两厅单卫/建筑面积:约87.1㎡

C4'户型/两室两厅单卫/建筑面积:约72.95㎡

D1户型/两室两厅单卫/建筑面积:约73.11㎡

D1'户型/两室两厅单卫/建筑面积:约73.11㎡

D2户型/一室两厅单卫/建筑面积:约56.08㎡

D3户型/一室两厅单卫/建筑面积:约56.08㎡

D4户型/三室两厅单卫/建筑面积:约87.29㎡

D4'户型/三室两厅单卫/建筑面积:约87.29㎡

Ga1户型/两室两厅单卫/建筑面积:约71.77㎡

Ga1'户型/两室两厅单卫/建筑面积:约71.77㎡

Ga2户型/一室两厅单卫/建筑面积:约55.05㎡

Ga3户型/两室两厅单卫/建筑面积:约67.93㎡

Ga4户型/三室两厅双卫/建筑面积:约96.1㎡

Ga4'户型/三室两厅双卫/建筑面积:约95.1㎡

H1户型/两室两厅单卫/建筑面积:约72.61㎡

H1'户型/两室两厅单卫/建筑面积:约72.61㎡

H2户型/三室两厅单卫/建筑面积:约86.69㎡

H3户型/两室两厅单卫/建筑面积:约68.73㎡

J1户型/两室两厅单卫/建筑面积:约73.26㎡

J1'户型/两室两厅单卫/建筑面积:约73.26㎡

J2户型/一室两厅单卫/建筑面积:约56.19㎡

J3户型/一室两厅单卫/建筑面积:约56.19㎡

J4户型/两室两厅单卫/建筑面积:约69.34㎡

K1户型/两室两厅单卫/建筑面积:约71.15㎡

K1'户型/两室两厅单卫/建筑面积:约71.15㎡

K2户型/一室两厅单卫/建筑面积:约55.39㎡

K3户型/一室两厅单卫/建筑面积:约55.39㎡

K4户型/三室两厅双卫/建筑面积:约94.29㎡

L1户型/三室两厅三卫/建筑面积:约117.96㎡

L2户型/三室两厅双卫/建筑面积:约107.6㎡

L3户型/四室两厅三卫/建筑面积:约142.67㎡

项目地址

中国元谋·远达温泉康养城

咨询电话:0878-6018888
项目地址:云南元谋·凤凰大道与西环线交汇处背面

咨询服务

流量统计