远达 · 江山美墅
项目位于南部县满福坝新区,北临满福大道,南临琴台大道,西临规划道路,东临规划道路,交通便利,四通八达,到达城市各个重要区域都很方便,从而成为多功能、复合型的城市新区,是城市中心区的高尚居住板块。
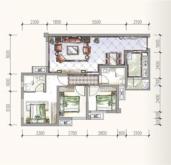
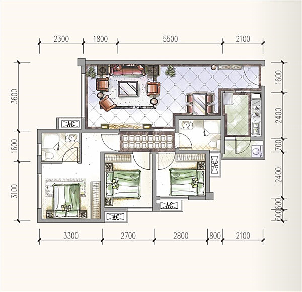
项目总占地380亩,约65万㎡,分为三期开发,一期为17栋住宅,1栋幼儿园,8栋配套商业;二期为27栋住宅,13栋配套商业,面积从65平米左右到130平米左右的多种户型。项目为远达集团旗下打造的高品质系列产品,大赠送、多功能,有层跃别墅、花园洋房、观景电梯及商业金街,将集生态纯居,是休闲购物为一体的现代化新兴生活城区,能充分满足各种用户的需求。小区建筑立面设计为新亚洲建筑风格,将亚洲元素植入现代建筑语系,以现代设计来传承东方文化的神韵和精髓,立面造型简洁,配色简约质朴,特质恢弘大气。
整体布局遵循“尊重自然、环境优美、绿色生态、环保节能”的理念,主入口设于南侧琴台大道,从主入口进入,为小区标志性的花园景观轴线,并通过板式高层与点式高层住宅交错与围合形成景观空间的延续性和纵深感,形成多视角景观组团,最大限度增大景观进深与宽度,以实现对景观资源的充分利用,形成各个组团的绿地空间。使小区业主每家每户都能享受到良好的景观,做到推窗有景,户户有景,可以更好的接触大自然。公共区域配套有休闲广场、趣味水景、健康跑道、全龄智趣乐园、羽毛球场、游泳池等,给业主休闲娱乐空间及归属感。
项目地址
远达 · 江山美墅
咨询电话:0817-5537888
项目地址:南充市南部县满福坝琴台大道文旅新城









































































